Walter Gropius

Bauhaus Buildings Dessau

Bauhausbücher 12

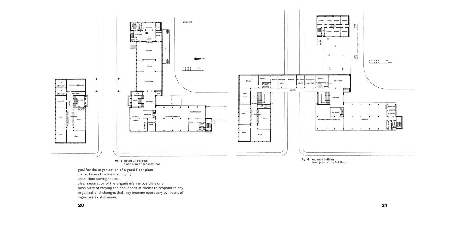
In his third and last contribution within the Bauhausbücher series, the founder and long-standing director of the Bauhaus, Walter Gropius, gives a comprehensive overview of the Bauhaus in Dessau. In addition to a brief outline of the origins and development of the school, Gropius presents the architectural design of the new Bauhaus building and the associated Masters’ Houses with the help of photographic documentary evidence and planning sketches. In the book, he traces the technical planning development with extreme precision and provides an insight into the design practice of the “Bauhäusler.

The series is published with the generous support of the Rudolf-August Oetker-Stiftung.

In his third and last contribution within the Bauhausbücher series, the founder and long-standing director of the Bauhaus, Walter Gropius, gives a comprehensive overview of the Bauhaus in Dessau. In addition to a brief outline of the origins and development of the school, Gropius presents the architectural design of the new Bauhaus building and the associated Masters’ Houses with the help of photographic documentary evidence and planning sketches. In the book, he traces the technical planning development with extreme precision and provides an insight into the design practice of the “Bauhäusler.

The series is published with the generous support of the Rudolf-August Oetker-Stiftung.

Author(s): Walter Gropius

Edited by Walter Gropius, László Moholy-Nagy (original series), Lars Müller (English edition) in collaboration with Bauhaus-Archiv / Museum für Gestaltung

Design: László Moholy-Nagy (original German edition)

18 × 23 cm, 7 × 9 in

224 pages, 203 illustrations

hardback

2021, 978-3-03778-665-9, English
$ 60.00

Walter Gropius

Walter Gropius (1888–1969) was the founder of the Bauhaus and a pioneer of modern architecture. In 1919, he was appointed to succeed Henry van de Velde as director of the School of Visual Arts in Weimar, which he renamed “Staatliches Bauhaus in Weimar”. In 1924, the Bauhaus moved to Dessau; Gropius designed the school building and the masters’ houses for the new location. In 1928, Gropius passed on the title of director to Swiss architect Hannes Meyer and became a self-employed architect in Berlin before emigrating to the United States in 1934. As a professor of architecture, he taught at Harvard University in Cambridge, Massachusetts, where he founded The Architects’ Collaborative in 1941. In his political efforts to industrialize construction and create desperately needed residential spaces, Gropius captured the spirit of the times and influenced the work of numerous other architects.

Albert Gleizes

Cubism

$ 50.00
Bauhausbücher, vol. 13